-
-
高壓定量葉片泵PV2R4
產品型號:高壓定量葉片泵PV2R4
高壓定量葉片泵PV2R4
- 產品介紹
- 規格參數
高壓定量葉片泵PV2R4型號說明
F- PV2R4 -136 -F -R A A -30 專用油液 型號 公稱排量
cm3/rev安裝型式 旋轉方向 排油口方向
(從軸伸端看)吸油口方向
(從軸伸端看)設計號 F:磷酸酯液
無標記:
石油基
油包水乳化液
水-乙二醇高壓定量
葉片泵136,153,184
200,237F:法蘭安裝型
L:腳座安裝型(從軸伸端看)
R:順時針方向
(標準)
L:逆時針方向A:向上(標準)
B:向下
R:向右
L:向左
法蘭安裝型只有AA:向上(標準)
B:向下
R:向右
L:向左30 高壓定量葉片泵PV2R4規格表
型號 理論
排量
cm3/rev最高工作壓力MPa 轉速范圍r/min 重量kg 石油基液壓油 含水液壓液 合成液壓液 最高 最低 法蘭型 腳座式 抗磨油 普通油 抗磨型水,乙二醇液 水乙二醇液 油包水乳化液 磷酸酯液 PV2R4-136 136 17.5 14.0 16.0 7.0 7.0 14.0 1800 600 68.5 93.5 PV2R4-153 153 PV2R4-184 184 PV2R4-200 201 PV2R4-237 237 高壓定量葉片泵PV2R4泵膽組件、密封件和軸承表
高壓定量葉片泵PV2R系列管法蘭組件
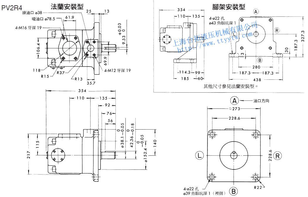
高壓定量葉片泵PV2R4尺寸圖
高壓定量葉片泵PV2R4性能曲線
